|
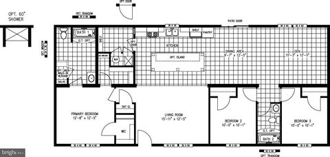
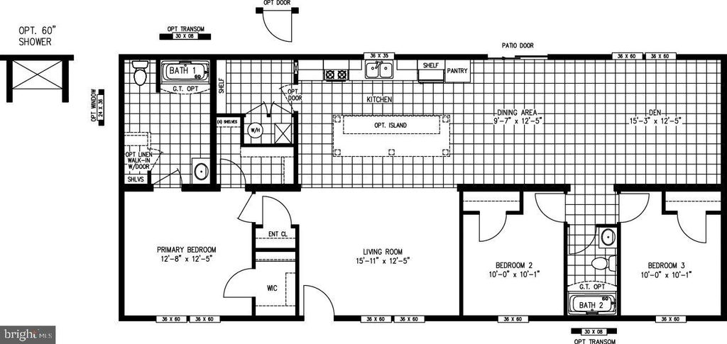
New Construction 3 bedroom, 2 full bath with 1600 sq' of living space. This one floor ranch style home is perfect for a growing family, down sizers or someone who just doesn't want steps. Located in the heart of Carneys Point and close to everything. This property offers 8' ceilings throughout, stainless steel kitchen appliances, central HVAC system, front and rear porch, recessed lighting, carpet and vinyl plank flooring. The home will sit on a permanent foundation with block wall. This home is being built. Pictures are of same model but different option package and colors.
| DAYS ON MARKET | 16 | LAST UPDATED | 4/9/2026 |
|---|---|---|---|
| TRACT | NONE AVAILABLE | YEAR BUILT | 2026 |
| COMMUNITY | Carneys Point Twp (21702) | COUNTY | SALEM |
| STATUS | Active | PROPERTY TYPE(S) | Single Family |
| School District | PENNS GROVE-CARNEYS POINT SCHOOLS |
|---|---|
| Elementary School | CARNEYS PT |
| Jr. High School | PENNS GROVE M.S. |
| High School | PENNS GROVE H.S. |
| ADDITIONAL DETAILS | |
| AIR | Central Air, Electric |
|---|---|
| AIR CONDITIONING | Yes |
| APPLIANCES | Electric Water Heater |
| AREA | Carneys Point Twp (21702) |
| CONSTRUCTION | Asphalt, Batts Insulation, Vinyl Siding |
| HEAT | Electric, Forced Air |
| LOT | 10019 sq ft |
| LOT DIMENSIONS | 100.00 x 100.00 |
| PARKING | Driveway |
| POOL DESCRIPTION | None |
| SEWER | Public Sewer |
| STORIES | 1 |
| STYLE | Ranch/Rambler |
| SUBDIVISION | NONE AVAILABLE |
| TAXES | 1335 |
| WATER | Public |
MORTGAGE CALCULATOR
TOTAL MONTHLY PAYMENT
0
P
I
*Estimate only
| SATELLITE VIEW |
| / | |
We respect your online privacy and will never spam you. By submitting this form with your telephone number
you are consenting for American Dream Realty
ADR to contact you even if your name is on a Federal or State
"Do not call List".
Listing provided by HomeSmart First Advantage Realty

The data relating to real estate for sale on this website appears in part through the BRIGHT Internet Data Exchange program, a voluntary cooperative exchange of property listing data between licensed real estate brokerage firms in which Dream Realty of South Jersey participates, and is provided by BRIGHT through a licensing agreement. The information provided by this website is for the personal, non-commercial use of consumers and may not be used for any purpose other than to identify prospective properties consumers may be interested in purchasing. Real estate listings held by brokerage firms other than Dream Realty of South Jersey are marked with the IDX icon and detailed information about each listing includes the name of the listing broker.
2026 BRIGHT, All Rights Reserved. Information Deemed Reliable But Not Guaranteed. Some properties which appear for sale on this website may no longer be available because they are under contract, have Closed or are no longer being offered for sale.
Data last updated: 4/25/26 8:15 AM PDT
This IDX solution is (c) Diverse Solutions 2026.
